- 住所
- 東京都文京区大塚3丁目3-14
- 交通
-
東京メトロ 丸ノ内線 茗荷谷 徒歩3分
- 竣工日
- 1999年10月26日
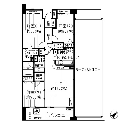
| 間取り図 | 階数 住戸番号 |
賃料 管理費・共益費 |
敷金 礼金 |
間取り 面積 |
ポイント | ||
|---|---|---|---|---|---|---|---|
| 申込有 |
|
4階 404 | 247,000円 15,000円 | 1.0ヶ月 1.5ヶ月 | 2LDK 60.24㎡ | 三井の賃貸 駅近 分譲賃貸 | お問合せ |