- 住所
- 東京都港区西麻布4-5-10
- 交通
-
東京メトロ 日比谷線 広尾 徒歩6分
東京都交通局 大江戸線 六本木 徒歩14分
東京メトロ 千代田線 乃木坂 徒歩15分
- 竣工日
- 2014年05月
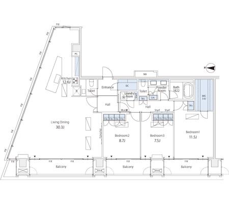
| 間取り図 | 階数 住戸番号 |
賃料 管理費・共益費 |
敷金 礼金 |
間取り 面積 |
ポイント | ||
|---|---|---|---|---|---|---|---|
|
19階 1905 | 980,000円 50,000円 | 1.0ヶ月 1.0ヶ月 | 3LDK 102.27㎡ | ペット可 タワー | お問合せ |