1. top
  2. Search by ward
  3. Shinagawa-ku
  4. 6F 603

6F 603

Email building information
email

Copy URL and email it

  • 603

    https://www.mitsui-chintai.co.jp/rf.eng/tatemono/10736/603

close

  • Transportation
  • Rent
    Management and common service fees
  • Deposit
    Key money
  • Floor square
  • Completion date
  • Selling point
  • Transportation
    Rent, Management and common service fees
    • ¥241,000
    • ¥20,000
    Deposit, Key money
    • 1 month
    • Non
    Floor square
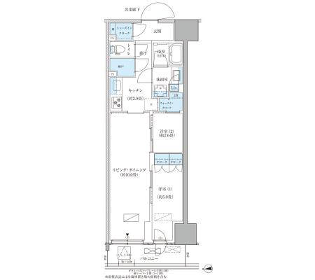
    2bedroom 50.40㎡
    Completion date
    Mar. 19, 2025
    Selling point
    Mitsui Property Pets allowed Free rent

Want to rent Contact for inquiries or to schedule viewing

Business hour 9:30~18:00Closed on Wednesdays and during New Year holiday period

Photos, movies, layout / Surrounding map

  • Floor plan
  • Priority given to the current state when the drawing and current state are different.
  • Photos and images may differ from the actual state. Room photos are of the same type.
    (Follow any room numbers or a types written in pictures.)
  • Unauthorized use or reproduction of images and photos is prohibited.

Want to rent Contact for inquiries or to schedule viewing

Business hour 9:30~18:00Closed on Wednesdays and during New Year holiday period

Detailed information on building and room

Transportation
Move in Date
Please contact us
Available viewing dates
Please contact us
Contract period
24 months (Fixed-term tenancies)
Size, structure
Reinforced concrete construction   14 floors above
Renewal fees
none
Parking
Please contact us
Orientation
West
Other costs
Entrance lock change fee when moving in ¥33,000(Include tax.)/ Account transfer fee ¥220(Include tax.)/ Normal cleaning fee when moving out ¥94,248(Include tax.)
Facilities for personal and/or shared space
Home delivery locker / Automatic locking / Motorcycle parking / Elevator / Balcony / Bath and toilet / Indoor washing machine space / With bath / Bathroom dryer / With bath reheater / BS / CATV / CS / Grill / With kitchen / With stove / Piano allowed
Note
Shared space management company
Insurance
Please contact us
Updated on
Apr. 04, 2026
Transaction mode
Mediation

Want to rent Contact for inquiries or to schedule viewing

Business hour 9:30~18:00Closed on Wednesdays and during New Year holiday period